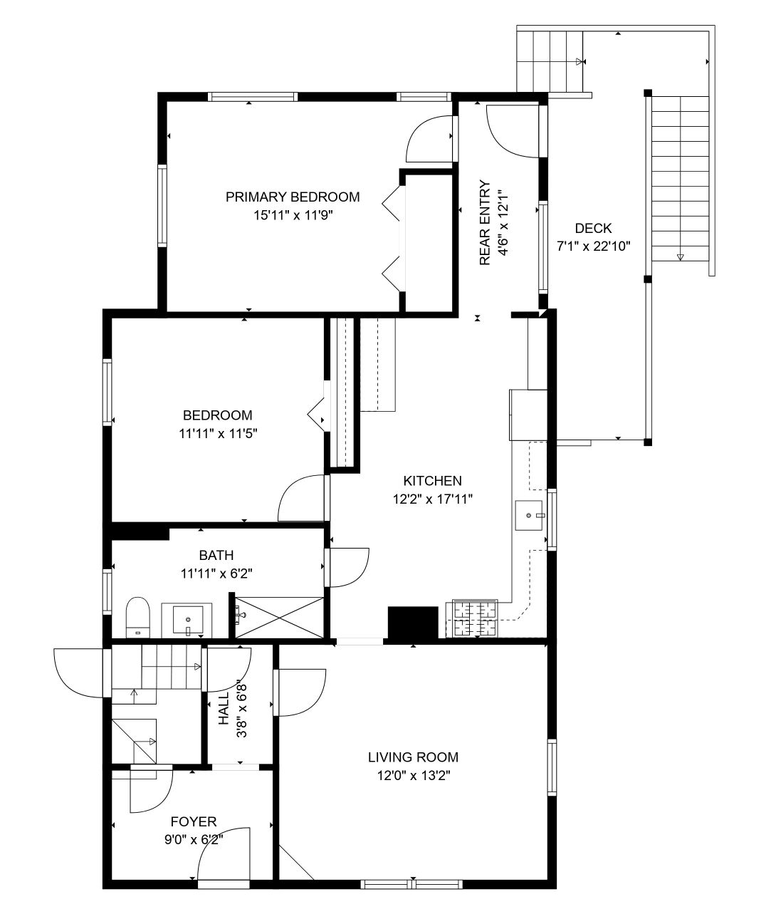
1st Floor
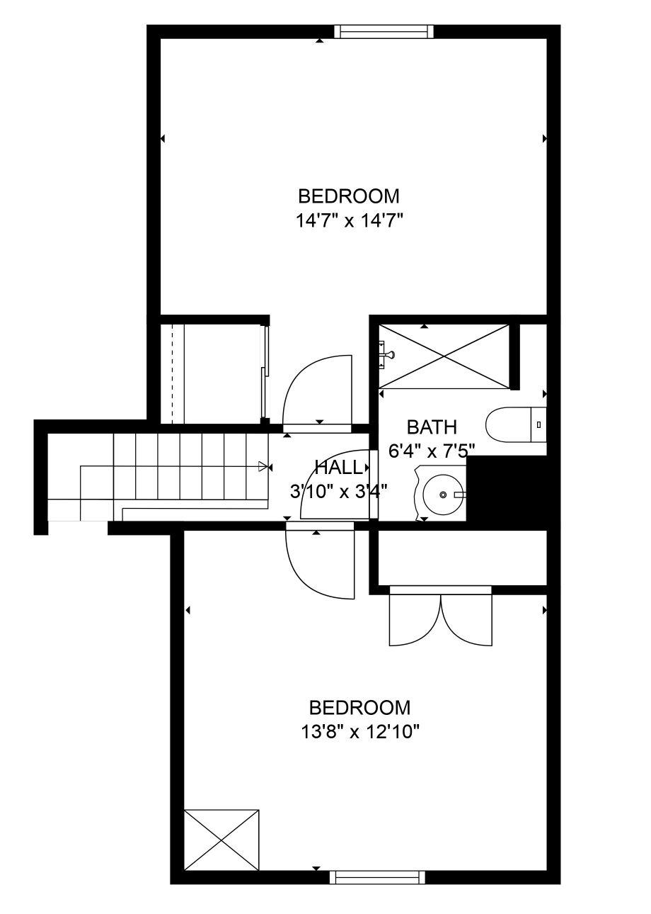
2nd Floor
3rd Floor

4th Floor

Key Details
Sold Price $1,029,00014.3%
Property Type Multi-Family
Sub Type 2 Family - 2 Units Up/Down
Listing Status Sold
Purchase Type For Sale
Square Footage 2, 508 sqft
Price per Sqft $410
MLS Listing ID 73176808
Bedrooms 5
Full Baths 4
Year Built 1930
Annual Tax Amount $5,966
Tax Year 2024
Lot Size 2,613 Sqft
Property Sub-Type 2 Family - 2 Units Up/Down
Location
State MA
County Suffolk
Area Jamaica Plain
Building
Lot Description Other
Story 3
Foundation Stone
Sewer Public Sewer
Water Public
Interior
Heating Unit 1(Hot Water Baseboard, Gas), Unit 2(Hot Water Baseboard, Gas)
Flooring Hardwood
Laundry Laundry Room
Exterior
Exterior Feature Porch, Deck, Storage Shed
Community Features Public Transportation, Shopping, Park, Walk/Jog Trails, Medical Facility, Bike Path, Public School, T-Station
Utilities Available for Gas Range
Roof Type Shingle
2023
New gutters
$4,094
2022
Renovated 3rd floor bathroom
$21,841
2021
New combo hot water/boiler, Unit 2
$16,607
2019
Renovated 1st floor bathroom
$18,000
2016
2 new skylights, Unit 2
$4,421
2012
2nd floor bathroom renovated
$23,000
2011
Hardwood floors installed on 3rd floor
$3,400
2010
Hardwood floors installed in 2nd floor kitchen & foyer
$2,100
2009
New combo hot water/boiler, Unit 1
$5,800
2007
New front steps & front door$4,280
Front fence & gates $6,000
Paved entire yard & driveway $3,500
2006
Basement finished
$14,000
Front & back windows replaced, 1st and 2nd floors
2005
New washer and dryer $2,726
Back decks replaced, 1st and 2nd floors
SunSetter awning installed over 2nd floor deck
2004
1st floor kitchen updated
$9,000
2001
Complete makeover of 2nd floor
$25,000

CONTACT











