GALLERY

PROPERTY DETAIL
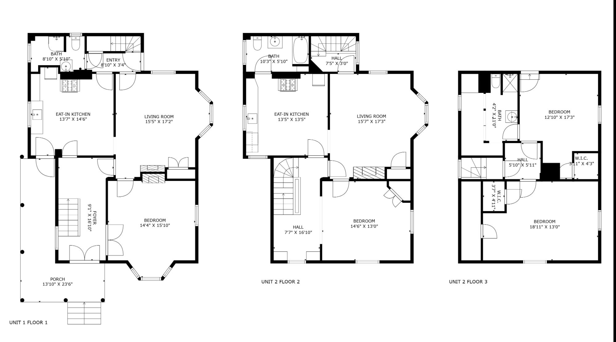
Key Details
Sold Price $1,525,00017.4%
Property Type Multi-Family
Sub Type 2 Family - 2 Units Up/Down
Listing Status Sold
Purchase Type For Sale
Square Footage 2, 216 sqft
Price per Sqft $688
MLS Listing ID 73380834
Bedrooms 4
Full Baths 3
Year Built 1820
Annual Tax Amount $7,442
Tax Year 2025
Lot Size 3,920 Sqft
Property Sub-Type 2 Family - 2 Units Up/Down
Location
State MA
County Suffolk
Area Jamaica Plain
Zoning 104-2-fam
Building
Lot Description Corner Lot
Story 3
Foundation Irregular
Sewer Public Sewer
Water Public
Interior
Fireplaces Number 2
Exterior
Exterior Feature Garden
Garage Spaces 1.0
Community Features Public Transportation, Shopping, Park, Other
Roof Type Slate
Schools
Elementary Schools Bps
Middle Schools Bps
High Schools Bps
Others
Acceptable Financing Contract
Listing Terms Contract
CONTACT









