GALLERY
PROPERTY DETAIL
Key Details
Sold Price $930,0002.0%
Property Type Multi-Family
Sub Type 2 Family - 2 Units Up/Down
Listing Status Sold
Purchase Type For Sale
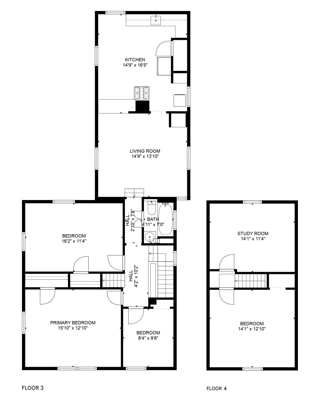
Square Footage 2, 346 sqft
Price per Sqft $396
MLS Listing ID 73156148
Bedrooms 5
Full Baths 2
Year Built 1900
Annual Tax Amount $11,536
Tax Year 2024
Lot Size 4,791 Sqft
Property Sub-Type 2 Family - 2 Units Up/Down
Location
State MA
County Suffolk
Area Jamaica Plain
Zoning 3F
Building
Lot Description Corner Lot, Wooded
Story 3
Foundation Stone
Sewer Public Sewer
Water Public
Interior
Heating Unit 1(Hot Water Radiators, Gas), Unit 2(Hot Water Radiators, Oil)
Cooling Unit 1(None), Unit 2(None)
Flooring Wood, Unit 1(undefined)
Exterior
Exterior Feature Patio
Utilities Available for Gas Range
Roof Type Shingle
Unit 1

Unit 2

CONTACT

Christian Iantosca








